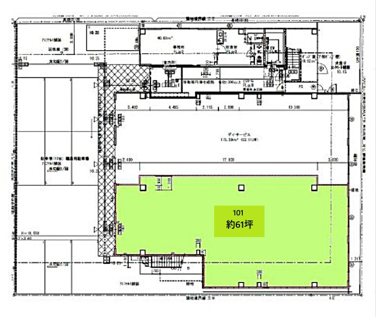
京都府京都市南区 新築ビル1階テナントのご紹介です。
・新築路面店1階、視認性抜群!
・近隣にはホームセンターやドラッグストア、スーパーがあり、地域住民の生活動線上となっており早期認知や安定した集患が見込めます。
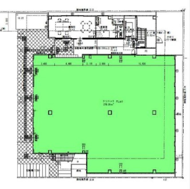
・隣にはデイサービスが入居予定。特に内科・整形外科は近隣に無く相乗効果も見込めるためおすすめです。
・敷地内には駐車場も完備でお車でのアクセスも良好です。※駐車場別途契約
物件内覧・諸条件等、お気軽にお問合せください。
周辺患者層の特徴と生活動線分析
本物件は西大路駅近くの生活動線上に位置し、周辺にはホームセンター・ドラッグストア・スーパーが集中しているため、買い物移動と同時の来院需要が期待できます。マンション・戸建て住宅が混在するエリアで、ファミリー層と高齢世帯の双方から安定した来院が見込めるほか、車来院の比率が高めとなる地域特性が想定されます。
スタッフ確保・採用環境の考察
西大路エリアは周辺の住宅地からの通勤圏が広く、特に医療事務・看護助手・パート看護師など勤務シフトに柔軟な人材を確保しやすい土壌があります。駅徒歩圏でありながら駐車場完備のため自転車・自家用車通勤も可能で、働き方の多様性を担保しやすい点は人材定着面で強みとなります。
地域包括支援センター・介護拠点との連携性
京都市南区は地域包括ケア連携を進めており、半径1~2km圏内に居宅介護支援事業所や訪問介護・看護拠点が複数所在します。高齢者支援体制との連携を想定した診療科構築(内科・整形外科・生活習慣病管理・在宅医療)との親和性が高く、早期からケアマネ・訪問系事業所との連携を行うことで地域密着型の診療体制が整えやすい環境です。




