大阪市東淀川区 淡路駅 ドラッグストア併設テナントのご紹介です。
・淡路駅からすぐの商業ビルがリニューアル! 1~2階はドラッグストア、3~4階はクリニックモールとして生まれ変わります!
・集客力のあるドラッグストア併設なので早期認知や安定した集患が見込めます。
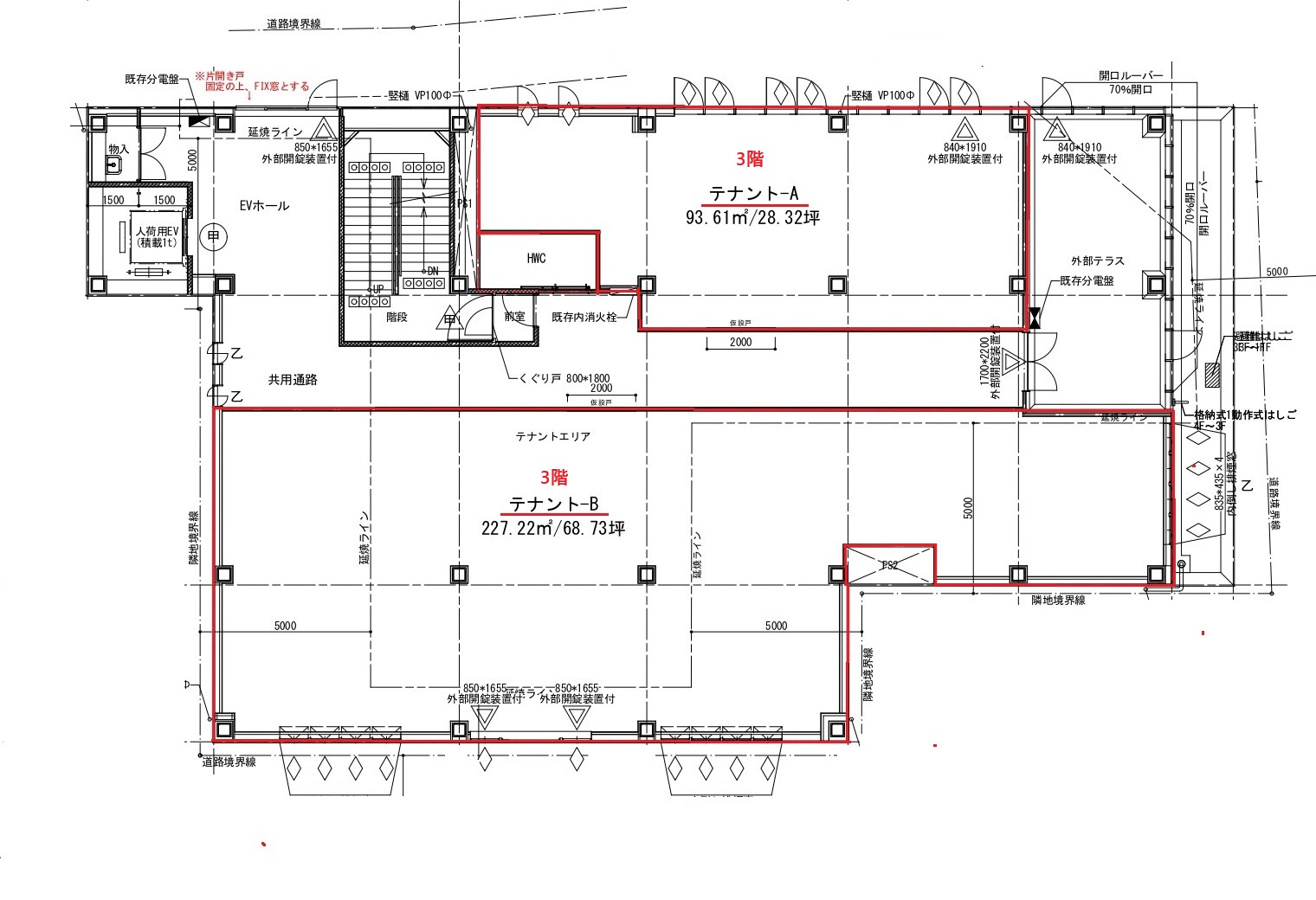
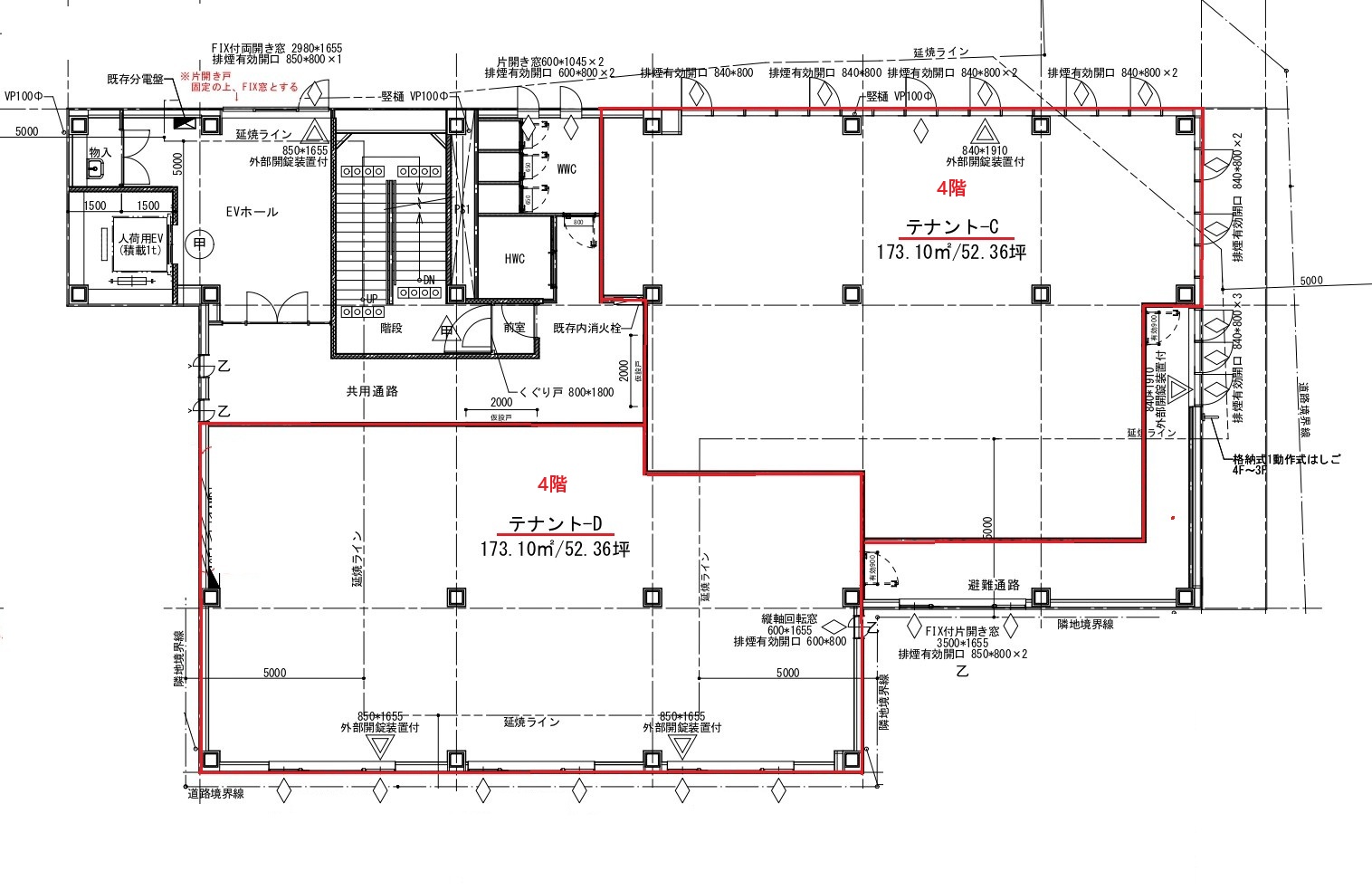
・3階と4階で計4区画の募集。クリニック間での相乗効果も期待できます。
・東淡路商店街入口のすぐ横にあり、阪急とJRの乗換動線上にも位置しているため人通りが多い場所です。
・商店街を利用する買い物客や、通勤通学で駅を利用する人など幅広い層の集患に期待できます。
物件内覧・諸条件等、お気軽にお問合せください。
周辺患者層の特徴と生活動線分析
淡路駅は阪急とJRの乗換拠点として利用者が多く、通勤・通学者、単身世帯、ファミリー層が混在する都市型エリアです。物件は商店街入口に位置し、日常の買い物動線や駅動線と自然に重なるため、幅広い年代に対し早期認知が可能です。ドラッグストア併設により健康関連ニーズを持つ来店者が流入しやすく、慢性疾患フォローから急性期の受診まで安定した需要が期待できます。
スタッフ確保・採用環境の考察
東淀川区は医療機関が多く、医療事務・看護師・検査技師など経験者の居住率が高い地域です。駅近のため通勤利便性が高く、シフト制で働きたいパート層の応募も見込めます。近隣には大学や専門学校も多く、医療系学生のアルバイト採用や若手スタッフの育成にも適しています。複数クリニックが入居する環境はスタッフの定着にも寄与しやすいのが特徴です。
地域包括支援センター・介護拠点との連携性
周辺には地域包括支援センター、訪問看護ステーション、デイサービスなど在宅・介護系資源が揃っており、地域包括ケアの連携体制を取りやすい立地です。都市部でありながら高齢化率が上昇しているエリアのため、在宅医療や生活支援と連携した継続的診療ニーズが高まっています。商店街に隣接した立地は、地域住民の生活圏に溶け込む「身近なかかりつけ医」としての機能を発揮しやすい点も強みです。





