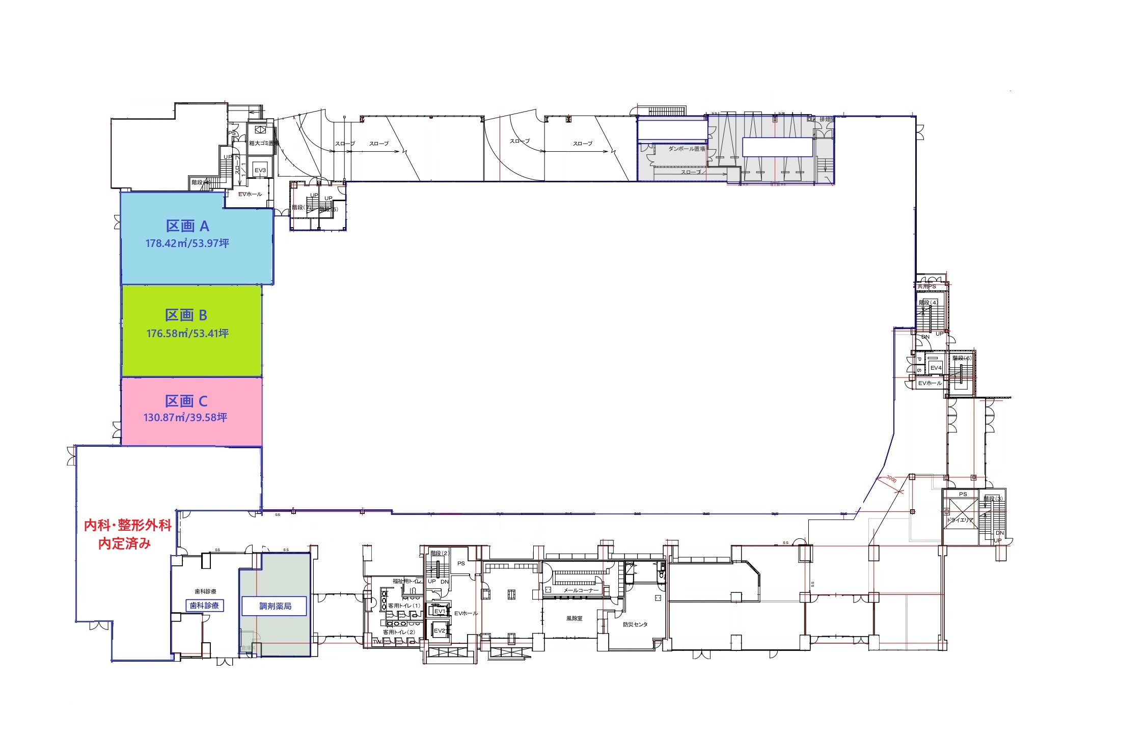
大阪府堺市 南海泉北線 光明池駅前1階クリニックモールのご紹介です。
・駅前すぐの好立地で大変視認性・利便性も良く開業当初から安定した集患が期待できます。
・マンションが建ち並ぶエリアで世帯数も多く人口が密集している地域です。
・競合医療機関の少ないエリアで地域住民の重要な医療拠点としてニーズが高く、医院開業にオススメです。
・内科・整形外科・調剤薬局決定済でクリニック間での相乗効果も期待できます。
周辺患者層の特徴と生活動線分析
光明池駅周辺は泉北ニュータウンの一角で、計画的に整備された住宅地が広がっています。入居から年数が経過しており、高齢者比率が高い一方、子育て世代も一定数存在します。生活動線は駅・バスターミナル、スーパー、医療機関、光明池緑地を結ぶ形が中心で、徒歩・自転車利用が多いのが特徴です。通院は「駅近」「バス一本」で完結する利便性が重視されやすい地域です。
スタッフ確保・採用環境の考察
周辺には住宅地が多く、地元在住の看護師・医療事務・介護職の潜在層が期待できます。一方で、堺市中心部や大阪市内へ流出する人材も多いため、勤務時間の柔軟性や駅近立地、家庭と両立しやすい職場環境を打ち出すことが採用面で有効です。パート・時短採用との相性が良いエリアです。
地域包括支援センター・介護拠点との連携性
光明池周辺には地域包括支援センター、特養・老健、訪問介護事業所が比較的集積しています。高齢化が進む地域特性から、医療と介護の連携ニーズは高く、在宅医療・慢性疾患管理・認知症対応での協力体制を築きやすい環境です。顔の見える連携が地域医療の質向上につながります。







