京都府京都市 新築ビルテナントのご紹介です。
・鳥丸駅出口直結で利便性抜群!
・新築ビルの4階と5階で医療モール計画です。1階には集客力のある大手ドラッグストアが出店予定!
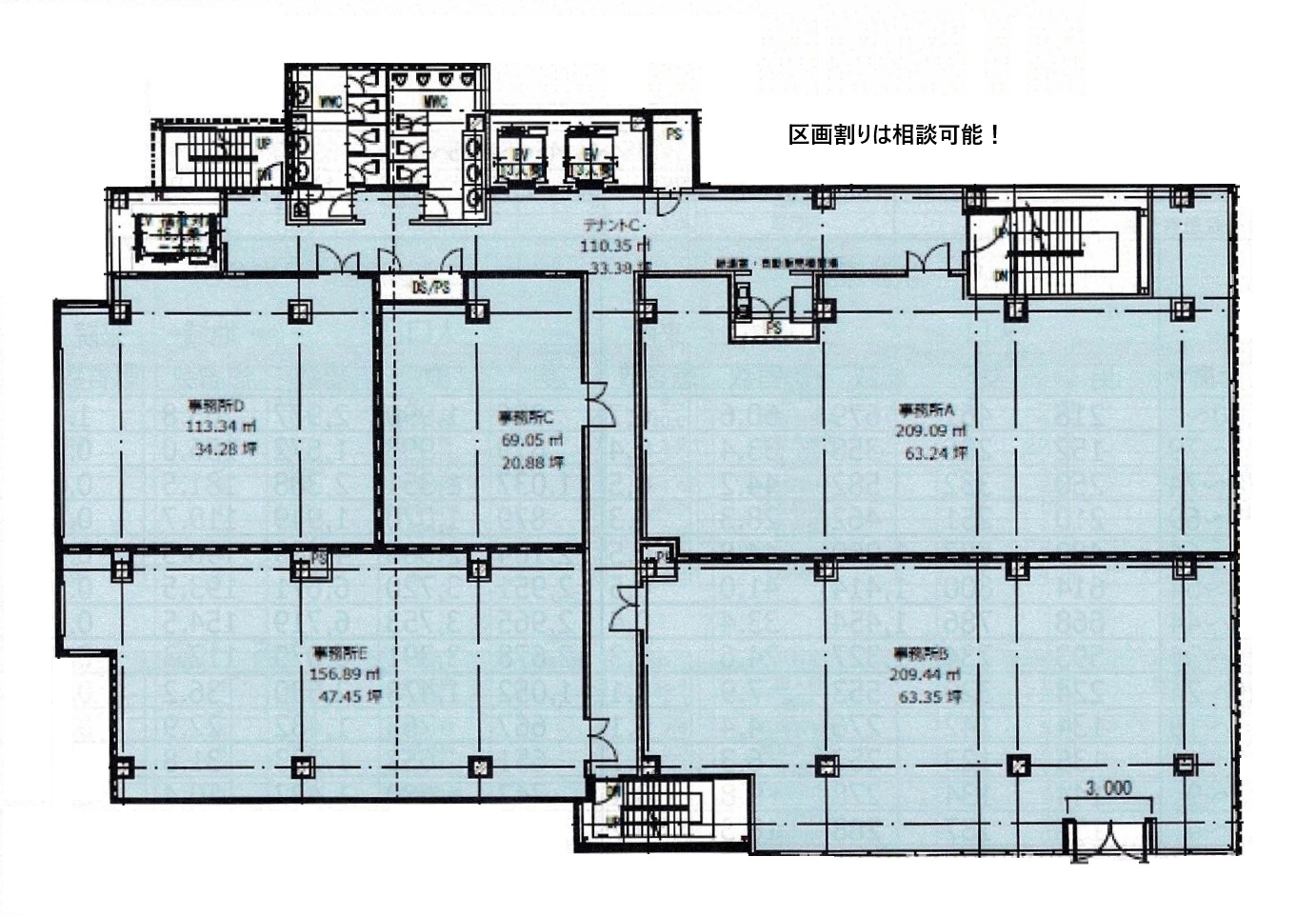
・区画割りは30坪~120坪あたりで相談可能です。
・大丸やアップルストアが並ぶ一角で、人通りや車通りの多い場所に位置しています。
諸条件等、お気軽にお問合せください。
周辺患者層の特徴と生活動線分析
本物件は烏丸駅出口直結、四条通に面した都心中枢立地で、通勤・買い物・観光動線が重なる高頻度通行エリアです。周辺は百貨店や専門店が集積し、若年層から就労世代、インバウンドまで幅広い来街者が見込まれます。平日昼夜・週末ともに安定した受診需要が期待でき、専門外来や自由診療との親和性も高い環境です。
スタッフ確保・採用環境の考察
京都市中心部は公共交通網が充実しており、広域からの通勤が可能です。新築ビル内医療モールは設備面・就業環境の訴求力が高く、看護師・医療事務の採用競争力を高めます。1階の大手ドラッグストアによる集客は職場認知にも寄与し、常勤・非常勤ともに安定した人材確保が見込めます。
地域包括支援センター・介護拠点との連携性
四条烏丸周辺には地域包括支援センターや居宅介護支援事業所が点在し、都市型の医療・介護連携が取りやすいエリアです。通勤者・高齢居住者の双方に対応した慢性疾患管理や紹介連携が可能で、急性期病院・薬局との連携も円滑。都心立地を活かした機動的な地域連携体制の構築が期待できます。



