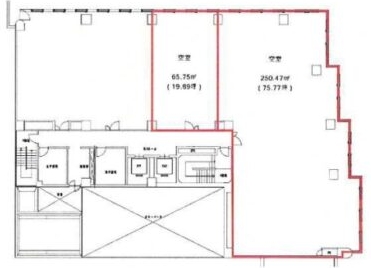
大阪市淀川区新北野ビルテナントのご紹介です。
阪急京都線・宝塚線・神戸線「十三駅」徒歩5分、周辺には銀行やコンビニ、スーパーマーケット、そのほか様々な商業施設が点在しており、市民の生活道路に面しているため視認性抜群!
また近隣病院との病診連携も期待できるなど医院開業にもオススメです。
物件内覧・諸条件等、お気軽にお問合せください。
周辺患者層の特徴と生活動線分析
十三駅は3路線が交差するターミナル性が高く、通勤・通学人口が非常に多いほか、古くからの居住者と新規転入の単身・共働き層が共存する街区です。駅から商業施設・生活道路へ向かう主要導線上に位置し、特に平日夕方〜夜間の集患メリットが大きい点が特徴です。半径1km内に中高年層の単身世帯が多い地区もあり、生活習慣病フォローや在宅前段階の外来診療ニーズが安定的に見込めます。
スタッフ確保・採用環境の考察
十三駅はターミナル性から人材の広域通勤圏が確保でき、医療事務・看護職とも応募母数を確保しやすい立地です。近隣に専門学校・短大も点在しており、未経験層の育成採用にも適しています。勤務シフトの柔軟性を担保すれば扶養内勤務層の確保も見込め、開業初期の運営リスクを低減できます。駅近×生活道路沿いという利便性は離職率抑制にも効果が期待できます。
地域包括支援センター・介護拠点との連携性
淀川区は在宅ケア支援が比較的整備されており、十三エリア周辺には訪問看護・介護事業所が複数立地しています。医療依存度が高くなる前の「外来かかりつけ化」を図りやすいエリアであり、紹介・逆紹介ともに双方向連携が構築しやすいのが特徴です。地域包括支援センターとの情報交換も行いやすく、慢性疾患管理・認知症初期支援・生活支援との連動性が高い立地といえます。




