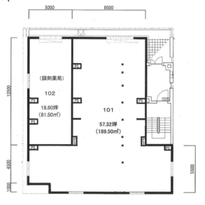
大阪府枚方市京阪枚方市駅近テナント1階のご紹介です。
京阪電鉄枚方市駅から徒歩3分での好立地物件。
駅に直結の大型ショッピングモールの出入口からも直ぐで
住宅密集地ですので集患にも期待が出来ます。
クリニック限定の案件です!
また近隣病院との病診連携も期待できるなど医院開業にもオススメ。
物件内覧・諸条件等、お気軽にお問合せください。
周辺患者層の特徴と生活動線分析
京阪枚方市駅から徒歩3分、駅直結の大型ショッピングモール出入口に近い立地で、通勤・通学者の動線上に位置します。周辺は住宅密集地でファミリー層や高齢者も多く、年齢層を問わず安定した集患が期待可能です。また商業施設との連動により、買い物や通勤のついでに来院する患者も見込めます。
スタッフ確保・採用環境の考察
駅近でアクセス良好なため、医療スタッフの通勤負担が少なく、正社員・パート問わず採用しやすい環境です。周辺は住宅街も広がっており、地域に定住する子育て世代のスタッフ確保も期待できます。生活利便性が高いため、長期的な人材定着にも寄与します。
地域包括支援センター・介護拠点との連携性
周辺には地域包括支援センターや介護施設が点在し、高齢者や在宅患者への対応がしやすい環境です。地域密着型医療の展開が可能で、慢性疾患や介護医療の連携を含めた包括的な医療サービス提供にも適しています。




