大阪府吹田市江坂駅前ビルテナントのご案内です。
大阪メトロ御堂筋線「江坂駅」徒歩1分の好立地!
都会の街と緑豊かな落ち着いた街の融合した「江坂」で
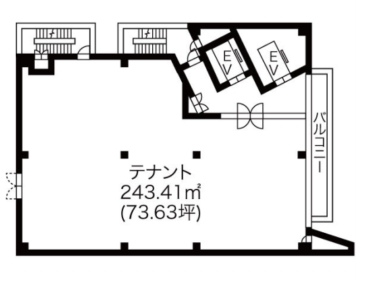
大阪内環状沿いの8階建てビルの8階最上階1フロアー物件です。
周辺は、商業施設が建ち並び人通りも多く、認知度は高く、
同ビル内にクリニックなど様々な店舗が盛業中で
併せての集患が期待できます。
物件内覧・諸条件等、お気軽にお問合せください。
周辺患者層の特徴と生活動線分析
江坂駅周辺は、駅直結のオフィスビルや商業施設、マンションが立ち並ぶ地域で、働く世代からファミリー層まで幅広い年齢層の患者が見込めます。駅直結の利便性により徒歩や自転車での来院動線が確保されており、通勤・通学経路上での認知度も高く、早期集患が期待できます。
スタッフ確保・採用環境の考察
周辺には医療系専門学校や大学が複数立地しており、若手医療スタッフや看護師の採用環境は良好です。また、駅近で利便性が高いため、非常勤スタッフやパート勤務者の確保も容易で、安定した医療体制構築に適した地域です。
地域包括支援センター・介護拠点との連携性
江坂駅周辺には複数の地域包括支援センターや高齢者施設が存在し、医療・介護の連携が円滑に行える環境です。在宅医療やリハビリ、介護相談などへの迅速な対応が可能で、地域密着型のクリニック運営にも適しています。



