鳥取県鳥取市ロードサイドクリニックテナントのご紹介です。
市民の生活道路沿い視認性抜群の好立地物件!
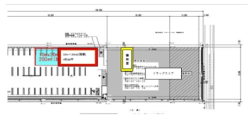
周辺は、大型スーパーやディスカウントショップ、
他商業施設が建ち並ぶエリアで、月平均15,000人の来客数が
あるドラックストアの敷地内に計画されていることもあり
早期の認知・盛業には期待できます。
また近隣病院との病診連携も期待できるなど医院開業にもオススメです。
物件内覧・諸条件等、お気軽にお問合せください。
周辺患者層の特徴と生活動線分析
ロードサイド沿いで視認性抜群、周辺には大型スーパーや商業施設が点在。月平均15,000人の来店動線を活かせるため、買い物ついでや生活圏内での定期来院が見込め、幅広い年齢層の患者集患に適した環境です。
スタッフ確保・採用環境の考察
鳥取市内は医療・介護人材の供給は限られるものの、生活利便性の高いロードサイド立地で、通勤可能な範囲の人材採用が可能です。パート・非常勤スタッフも含めた柔軟な採用戦略で運営安定化が期待できます。
地域包括支援センター・介護拠点との連携性
近隣には地域包括支援センターや高齢者福祉施設が点在しており、在宅医療や介護サービスとの連携が容易です。周辺病院との病診連携も活用することで、地域密着型医療の構築が可能な環境です。



